|
|
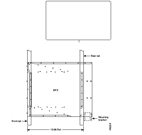
This appendix illustrates the space requirements for various system configurations in the STRATM cabinet and a typical cable management setup. It also contains a table with the height of StrataCom components in inches, centimeters, and rack-mount units (RMUs). This can help in the calculation of height requirements for individual system configurations. The last illustration shows the bracket installation in the STRATM (for a BPX, in this case). The sequence of sections is as follows:











| Components | Unit Height | ||
|---|---|---|---|
| Inches | CM. | RMUs | |
| AXIS Card Cage | 8.75 | 22.225 | 5 |
| AXIS AC Power Supply shelf | 5.25 | 13.335 | 3 |
| AXIS Booster Fan Assembly | 3.5 | 8.89 | 2 |
| AXIS Cooling Assembly | 5.25 | 13.335 | 3 |
| AXIS Exhaust Plenum | 3.5 | 8.89 | 2 |
| BPX AC Power Supply shelf | 5.25 | 13.335 | 3 |
| BPX Card Cage | 22.75 | 57.785 | 13 |
| IGX AC Power Supply shelf | 5.25 | 13.335 | 3 |
| IGX Booster Fan Assembly | 3.5 | 8.89 | 2 |
| IGX Card Cage | 17.5 | 44.45 | 10 |
| IGX Cooling Assembly | 5.25 | 13.335 | 3 |
| IGX Exhaust Plenum | 3.5 | 8.89 | 2 |
| IGX-8 | 24.5 | 62.23 | 14 |
| INS | 5.5 | 13.97 | 4 |
| Cabinet | Unit Height | ||
| Inches | CM. | RMUs | |
| Stratm Cabinet | 71.75 | 1822.45 | 41 |


|
|