Banner
HomeTOCPrevNextGlossSearchHelp

PDF

Table of Contents

Maintaining the Universal Access Server


Maintaining the Universal Access Server

Maintaining the Universal Access Server

This appendix contains information about maintenance procedures that you might need to perform on the access server as your internetworking needs change.

This appendix contains the following sections:

Caution Before opening the chassis, ensure that you have discharged all static electricity from your body and be sure that the power is off. Before performing any procedures described in this appendix, review the sections "Safety Recommendations," "Maintaining Safety with Electricity," "Preventing Electrostatic Discharge Damage," and "General Site Requirements" in the chapter "Preparing to Install the Universal Access Server."

fig_23.gif Warning Before working on a chassis or working near power supplies, unplug the power cord on AC units; disconnect the power at the circuit breaker on DC units. (To see translated versions of this warning, refer to the Regulatory Compliance and Safety Information document that accompanied the access server.)


Installing Feature Cards

You can install feature cards in the access server without removing the chassis cover. Each access server chassis can accommodate up to three feature cards. The choice of feature cards is as follows:

A blank slot cover must be installed over unused slots.


Installing a Dual T1 PRI Card

Follow these steps to install a dual T1 PRI access server feature card:

Step 1 Turn off power to the access server.

fig_24.gif Caution Unlike some other Cisco access servers, the feature cards are not hot-swappable (that is, you cannot remove or install them when the power to the access server is on). Be sure to turn off the power to the access server before installing or removing feature cards. Failure to do so can damage the access server.

Step 2 Remove the feature card from the electrostatic discharge (ESD) protective shipping material.

Step 3 Slide the feature card into the appropriate slot along the card guides until it is completely seated in the connector inside the access server. (See Figure A-1).

Step 4 Tighten the two, captive mounting screws on the card to secure it to the chassis.

Figure A-1 : Installing a Feature Card

fig_25.gif

Step 5 If the access server is configured with fewer than three feature cards, make sure that a blank slot cover is installed over each open slot to ensure proper airflow inside the chassis.


Installing a 12-Port Modem Card

You can add a 12-port modem card to a carrier card installed in the access server. The modem card can be installed in the carrier card without removing the carrier card from the chassis.


Required Tools

You need the following tools to install the 12-port modem card:

Caution Unlike some other Cisco access servers, the feature cards are not hot-swappable (that is, you cannot remove or install them when the power to the access server is on). Be sure to turn off the power to the access server before installing or removing feature cards. Failure to do so can damage the access server.

The installation of the 12-port modem card is shown in Figure A-2. The carrier card is shown removed from the access server to show the installation of the 12-port modem card in the carrier card.

Figure A-2 : 12-Port Modem Card Installation

h6259.gif

Follow these steps to install a 12-port modem card:

Step 1 Turn off the access server.

Step 2 Remove all interface cables from the back panel of the access server.

Step 3 Place the access server so that the back panel is closest to you.

Step 4 Put on an ESD-sensitive wrist strap.

Step 5 Remove the blank cover on the carrier card.

Step 6 Remove the 12-port modem card from the ESD protective shipping material.

Step 7 Slide the modem card into the carrier card slot until it is completely seated in the carrier card.

Step 8 Tighten the two captive screws on the modem card to secure it to the carrier card.


Installing the Dual E1 PRI Card

The access server is shipped with the Dual E1 PRI card installed. The Dual E1 PRI card can be installed in any unused feature card slot in the chassis. The card must be removed from the access server chassis to set the jumpers for 75 ohm unbalanced or 120 ohm balanced E1 line termination.


Required Tools

You need the following tools to remove and install the Dual E1 PRI card:


Removing the E1 PRI Card

You can remove the Dual E1 PRI card in the access server without removing the chassis cover. A blank slot cover must be installed over unused slots.

fig_8.gif Warning The access server is to be installed and maintained by service personnel only as defined by AS/NZS 3260 Clause 1.2.14.3 Service Personnel. Incorrect connection of this or connected equipment to the General Purpose Outlet could result in a hazardous situation. (To see translated versions of this warning, refer to the Regulatory Compliance and Safety Information document that accompanied the access server.)

fig_9.gif Warning The telecommunications lines must be disconnected 1) before unplugging the main power connector and/or 2) while the housing is open. (To see translated versions of this warning, refer to the Regulatory Compliance and Safety Information document that accompanied the access server.)

fig_10.gif Warning Do not touch the power supply when the power cord is connected. For systems with a power switch, line voltages are present within the power supply even when the power switch is off and the power cord is connected. For systems without a power switch, line voltages are present within the power supply when the power cord is connected. (To see translated versions of this warning, refer to the Regulatory Compliance and Safety Information document that accompanied the access server.)

fig_11.gif Caution Unlike some other Cisco access servers, the feature cards are not hot-swappable (that is, you cannot remove or install them when the power to the access server is on). Be sure to turn off the power to the access server before installing or removing feature cards. Failure to do so can damage the access server.


Note The E1 interface card may only be installed in AUSTEL permitted customer equipment or a Data Terminal Equipment that is exempted from AUSTEL's permit requirements. The customer equipment must only be housed in a cabinet which has screw down lids to stop user access to overvoltages on the customer equipment. The customer equipment has circuitry that may have telecommunications network voltages on them.

Follow these steps to remove the Dual E1 PRI card:

Step 1 Turn off the access server.

fig_15.gif Warning Before opening the chassis, disconnect the telephone-network cables to avoid contact with telephone-network voltages. (To see translated versions of this warning, refer to the Regulatory Compliance and Safety Information document that accompanied the access server.)

Step 2 Remove all interface cables from the rear panel of the access server.

Step 3 Place the access server so that the rear panel is closest to you. Note that the Dual E1 PRI card is secured to the chassis by a captive mounting screw at each end of the feature card, as shown in Figure A-3.

Figure A-3 : Dual E1 PRI Card Removal

fig_16.gif

Step 4 Put on an ESD-sensitive wrist strap.

Step 5 Loosen the two captive screws that secure the Dual E1 PRI card to the chassis until each screw is free of the chassis.

Step 6 Hold a captive screw in each hand, and pull until the card slides free of the chassis.

Step 7 Pull the card toward you until it is separated from the card slot. Set the Dual E1 PRI card aside on an ESD-sensitive mat.


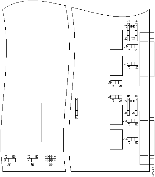
Setting E1 Port Jumpers

There are six 3-pin jumpers that configure the E1 termination for each port. The jumper settings are labeled on the printed circuit board for either 120 ohm balanced or 75 ohm unbalanced termination.

Follow these steps to set the jumpers on the Dual E1 PRI card:

Step 1 Place the Dual E1 PRI card on an ESD-sensitive mat as shown in Figure A-4:

Figure A-4 : E1 PRI Card Jumpers

h7459.gif

Step 2 Set the six jumpers (see Table A-1) to configure E1 Port 0 for 75 ohm unbalanced or 120 ohm balanced termination. The jumper numbers and jumper settings are labeled on the printed circuit board as shown in Figure A-5.

Table A-1 : E1 Port 0 Jumper Settings

Jumper
Number
75 Ohm
Termination
120 Ohm
Termination
Jumper Description
J9 75 120 Receiver impedance
J11 75 120 Ground Tring for 75 ohm
J12 GND 120 Ground (GND) Rring for 75 ohm, or ground shield for 120 ohm
J13 75 120 Transmit impedance
J14 75 120 Shield to connect to pin 7 for 120 ohm, or ground RRING for 75 ohm
J17 75 120 Software readable bit

Figure A-5 : E1 Port Jumpers

h7495.gif

Step 3 Set the six jumpers (see Table A-2) to configure E1 Port 1 for 75 ohm unbalanced or 120 ohm balanced termination. (See Figure A-5).

Table A-2 : E1 Port 1 Jumper Settings

Jumper
Number
75 Ohm
Termination
120 Ohm
Termination
Jumper Description
J3 75 120 Ground Tring for 75 ohm
J4 GND 120 GND Rring for 75 ohm
J5 75 120 Transmit impedance
J7 75 120 Shield connect to pin 7 for 120 ohm
J8 75 120 Receiver impedance
J18 75 120 Software readable bit


Reinstalling the Dual E1 PRI Card

Follow these steps to reinstall the Dual E1 PRI card in the access server chassis:

Step 1 Put on an ESD-sensitive wrist strap.

Step 2 Slide the feature card into the unused slot along the card guides until it is completely seated in the connector inside the access server. See Figure A-6.

Step 3 Tighten the two captive screws on the card to secure it to the chassis.

Figure A-6 : Installing a Dual E1 PRI Card

h7457.gif

Step 4 If the access server is configured with fewer than three feature cards, make sure that a blank slot cover is installed over each open slot to ensure proper airflow inside the chassis.


Opening the Chassis

This section describes the procedure for opening the chassis by removing the chassis cover.


Required Tools

You need the following tool to open the chassis:

  • Medium-size flat-blade screwdriver (1/4 inch [0.625 cm])


Removing the Chassis Cover

You must open the access server chassis to gain access to its interior components: the system card, system-code single in-line memory modules (SIMMs), dynamic random access memory (DRAM) SIMMs, and boot ROM. When you replace the boot ROMs, you must also remove of all feature cards in the chassis.

fig_2.gif Warning Do not touch the power supply when the power cord is connected. For systems with a power switch, line voltages are present within the power supply even when the power switch is off and the power cord is connected. For systems without a power switch, line voltages are present within the power supply when the power cord is connected. (To see translated versions of this warning, refer to the Regulatory Compliance and Safety Information document that accompanied the access server.)

Follow these steps to remove the chassis cover:

Step 1 Turn off the power; however, to channel electrostatic discharge (ESD) voltages to ground, do not unplug the power cable.

fig_3.gif Warning Before opening the chassis, disconnect the telephone-network cables to avoid contact with telephone-network voltages. (To see translated versions of this warning, refer to the Regulatory Compliance and Safety Information document that accompanied the access server.)

Step 2 Remove all interface cables from the rear panel of the access server.

Step 3 Place the access server so that the front panel is closest to you. Note that the chassis is comprised of two sections: top and bottom. The chassis top is secured to the bottom by three screws and metal tabs on the top cover and chassis.

Step 4 Remove the three screws located on the top cover of the chassis, as shown in Figure A-7.

Figure A-7 : Removing the Chassis Cover

h6254.gif

Step 5 Place one hand on each of the front corners of the top cover.

Step 6 Lift the front edge of the top cover one inch (2.54 cm) over the bottom chassis, as shown in Figure A-8.

Figure A-8 : Lifting the Top Cover

h6260.gif

Step 7 Pull the top cover toward you until the metal tabs on the top cover separate from the chassis bottom, as shown in Figure A-9.

Figure A-9 : Separating the Top Cover from the Chassis Bottom

h6261.gif

Step 8 Lift the top cover until it separates from the chassis bottom and set it aside.


Removing Feature Cards

Feature cards must be removed from the access server to access the system card or to upgrade the feature cards.


Required Tools

You need the following tools to remove the feature cards:

  • Medium-size flat-blade screwdriver (1/4 inch [0.625 cm])

  • ESD-sensitive mat

    fig_4.gif

Warning Do not touch the power supply when the power cord is connected. For systems with a power switch, line voltages are present within the power supply even when the power switch is off and the power cord is connected. For systems without a power switch, line voltages are present within the power supply when the power cord is connected. (To see translated versions of this warning, refer to the Regulatory Compliance and Safety Information document that accompanied the access server.)

Follow these steps to remove the feature cards:

Step 1 Turn off the access server.

fig_17.gif Warning Before performing any of the following procedures, ensure that power is removed from the DC circuit. To ensure that all power is OFF, locate the circuit breaker on the panel board that services the DC circuit, switch the circuit breaker to the OFF position, and tape the switch handle of the circuit breaker in the OFF position. (To see translated versions of this warning, refer to the Regulatory Compliance and Safety Information document that accompanied the access server.)

fig_5.gif Warning Before opening the chassis, disconnect the telephone-network cables to avoid contact with telephone-network voltages. (To see translated versions of this warning, refer to the Regulatory Compliance and Safety Information document that accompanied the access server.)

Step 2 Remove all interface cables from the rear panel of the access server.

Step 3 Place the access server so that the rear panel is closest to you. Note that the feature cards are secured to the chassis by a captive mounting screw at each end of the feature card, as shown in Figure A-10.

Figure A-10 : Feature Card Removal

h6253.gif

Step 4 Put on an ESD-sensitive wrist strap.

Step 5 Loosen the two captive screws that secure the feature card to the chassis until each screw is free of the chassis.

Step 6 Hold a captive screw in each hand, and pull until the card slides free of the chassis.

Step 7 Pull the feature card toward you until it is separated from the card slot. Set the card aside on an ESD-sensitive mat.

Repeat the procedure to remove additional feature cards.


Replacing Boot ROMs

To upgrade the boot read-only memory (ROM) software to a new software image, the existing boot ROMs must be replaced.


Required Tools and Equipment

The following tools and equipment are required to replace the boot ROMs:

  • Read-only memory (ROM) extraction tool or a small flat-blade screwdriver

  • Two boot ROMs

  • ESD-preventive wrist strap

Follow these steps to replace the boot ROMs:

Step 1 Turn off the access server.

fig_18.gif Warning Before performing any of the following procedures, ensure that power is removed from the DC circuit. To ensure that all power is OFF, locate the circuit breaker on the panel board that services the DC circuit, switch the circuit breaker to the OFF position, and tape the switch handle of the circuit breaker in the OFF position. (To see translated versions of this warning, refer to the Regulatory Compliance and Safety Information document that accompanied the access server.)

Step 2 Attach an ESD-preventive wrist strap.

Step 3 Open the cover. (See the instructions in the section "Opening the Chassis" in this appendix.)

Step 4 Remove all feature cards to access the system card. (See the instructions in the section "Removing Feature Cards" in this appendix.)

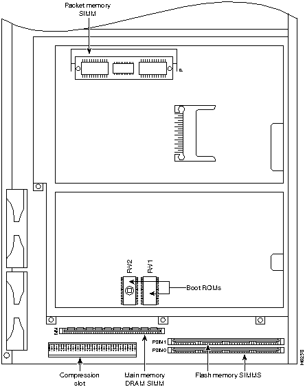
Boot ROMs (FW1 and FW2) on the system card are exposed, as shown in Figure A-11.

Figure A-11 : System Card Layout

h6258.gif

fig_6.gif Caution The correct placement of the boot ROMs is crucial. If improperly positioned, the new components could be damaged when the system is turned on. Read all of the instructions before proceeding. To prevent damage to the ROMs from ESD while you handle the system and its components, follow the ESD procedures described in the chapter "Preparing to Install the Universal Access Server." Also, be careful not to damage or scratch the printed circuit card under the ROMs.

Step 5 Locate the boot ROMs, FW1 and FW2, on the system board.

Step 6 Gently extract the old ROM with an ROM extraction tool or a small flat-blade screwdriver, and set the old boot ROM on a nonconductive surface.

fig_7.gif Caution The notch in the ROM must match the notch in the socket on the card. Installing the components backward damages them.

Step 7 Insert the new boot ROMs in their respective sockets as shown in Figure A-11. Be careful not to bend or crush any of the bottom pins. If necessary, use needlenose pliers to straighten out any bent pins, . Align the notch in the new ROM with the notch in the ROM socket; the orientation of the label is unimportant.


Upgrading the DRAM SIMM

This section describes how to upgrade the DRAM SIMM on the system card. You might need to upgrade the DRAM SIMM for the following reasons:

  • You have upgraded to a new Cisco IOS feature set or release.

  • You are using very large routing tables or many protocols (for example, when the access server is set up as a connection device between large external networks and your internal network).

There are two areas of removable DRAM SIMMs in the access server (see Figure A-11). This first area is the main memory DRAM SIMMs (labeled MM). Main memory is used by the CPU to store the operating configuration, routing tables, caches, and queues.

The second area is the packet memory DRAM SIMM (labeled PKT). Packet memory is used to store incoming and outgoing packets.


Required Tools and Equipment

You need the following tools to remove and replace the DRAM SIMM on the access server:

  • ESD-preventive wrist strap

  • The appropriate DRAM SIMM for your access server


Main Memory DRAM SIMM Installation

Follow these steps to install the main memory DRAM SIMMs:

Step 1 Turn off the access server.

fig_19.gif Warning Before performing any of the following procedures, ensure that power is removed from the DC circuit. To ensure that all power is OFF, locate the circuit breaker on the panel board that services the DC circuit, switch the circuit breaker to the OFF position, and tape the switch handle of the circuit breaker in the OFF position. (To see translated versions of this warning, refer to the Regulatory Compliance and Safety Information document that accompanied the access server.)

Step 2 Put on an ESD-preventive wrist strap.

Step 3 Open the chassis cover. (See the instructions in the section "Opening the Chassis" in this appendix.)

Step 4 Place the chassis with the main-memory DRAM SIMM socket (labeled MM) toward you, as shown in Figure A-11.

Step 5 Remove the existing DRAM SIMM by pulling outward on the connector holders to unlatch them, as shown in Figure A-12. The connector holds the SIMM tightly, so be careful not to break the holders on the SIMM connector.

fig_12.gif Caution To prevent damage, do not press on the center of the SIMM. Handle the SIMM carefully.

Figure A-12 : Removing and Replacing the CPU DRAM SIMM

h3558.gif

Step 6 Position the new SIMM so that the polarization notch is located at the right end of the SIMM socket.

Step 7 Insert the new DRAM SIMM by sliding the end with the metal fingers into the SIMM connector socket at approximately a 45-degree angle to the system card. Gently rotate the SIMM toward you until the latch on either side snaps into place. Do not use excessive force, because the connector might break.

Step 8 Replace the access server chassis cover. (See the instructions in the section "Closing the Chassis" in this appendix.)

Step 9 Connect the access server to a console terminal.

Step 10 Turn on the access server. If error messages relating to memory are displayed, remove the DRAM SIMM and reinstall it, taking care to seat the SIMM firmly in its socket.

fig_20.gif Warning After wiring the DC power supply, remove the tape from the circuit breaker switch handle and reinstate power by moving the handle of the circuit breaker to the ON position. (To see translated versions of this warning, refer to the Regulatory Compliance and Safety Information document that accompanied the access server.)


Replacing System-Code SIMMs

The system code (software) is stored in Flash memory SIMMs. The 80-pin Flash memory SIMMs must be purchased from Cisco Systems, Inc. Contact a customer service representative for more information.

The system code for the access server is contained on two 80-pin Flash memory SIMMs. Flash memory must be installed in both system-code SIMMs (labeled FSIM0 and FSIM1).


Required Tools and Equipment

You need the following tools to remove and replace the system-code SIMMs on the access server:

  • ESD-preventive wrist strap

  • The appropriate system-code SIMM(s) for your access server


System-Code SIMM Replacement

Follow these steps to upgrade the system-code Flash memory SIMMs:

Step 1 Turn off the access server.

fig_21.gif Warning Before performing any of the following procedures, ensure that power is removed from the DC circuit. To ensure that all power is OFF, locate the circuit breaker on the panel board that services the DC circuit, switch the circuit breaker to the OFF position, and tape the switch handle of the circuit breaker in the OFF position. (To see translated versions of this warning, refer to the Regulatory Compliance and Safety Information document that accompanied the access server.)

Step 2 Put on an ESD-preventive wrist strap.

Step 3 Open the chassis cover. (See the previous procedure in the section "Opening the Chassis" in this appendix.)

Step 4 Place the chassis so that the system card is shown in Figure A-11, with the system-code SIMMs toward you. The SIMM sockets are labeled FSIM0 and FSIM1. See Figure A-11.

Step 5 Remove the existing system-code SIMM by pulling outward on the connector holders to unlatch them. The connector holds the SIMM tightly, so be careful not to break the holders on the SIMM connector. See Figure A-13.

fig_13.gif Caution To prevent damage, do not press on the center of the SIMMs. Handle each SIMM carefully.

Step 6 Repeat these steps for all the system-code SIMMs that you need to replace.

Figure A-13 : Removing and Replacing the System-Code SIMM

h3559.gif

Step 7 Place the system card as shown in Figure A-13. Position the new SIMM so that the polarization notch is located at the right end of the SIMM socket.

fig_14.gif Caution Some Flash memory SIMMs have the components mounted on the rear side. To prevent damage when you insert the SIMM, always use the polarization notch as a reference, not the position of the components on the SIMM.

Step 8 Insert the new SIMM by sliding the end with the metal fingers into the appropriate SIMM connector socket (labeled FSIM0 or FSIM1 in Figure A-11) at approximately a 45-degree angle to the system card. Gently rotate the SIMM toward you until the latch on either side snaps into place. Do not use excessive force, because the connector might break.

Step 9 Replace the access server chassis cover. (See the instructions in the following section, "Closing the Chassis.")

Step 10 Connect the access server to a console terminal.

Step 11 Turn on the access server. If any error messages relating to memory are displayed, remove the system-code SIMM and reinstall it, taking care to seat the SIMM firmly in the socket.


Closing the Chassis

This section describes the procedure for closing the chassis.


Required Tools

You need the following tools for replacing the chassis cover:

Medium-size flat-blade screwdriver (1/4 inch [0.625 cm])


Replacing the Cover

After you finish the maintenance for your system, follow these steps to replace the cover:

Step 1 Place the chassis bottom so that the front panel is closest to you.

Step 2 Hold the top cover over the chassis bottom, and align the chassis and top cover tabs at the top rear of the chassis, as shown in Figure A-14.

Step 3 Push the top cover toward the chassis back panel, and ensure the following:

  • The top cover tabs fit under the chassis back panel so that they are not exposed.

  • The chassis tabs on the top of the chassis back panel fit under the top cover so that they are not exposed.

Figure A-14 : Replacing the Chassis Cover

h6257.gif

Step 4 Lower the front of the top cover to close the chassis, and ensure the following:

  • The top cover side tabs fit under the chassis side panels so that they are not exposed.

  • The chassis tabs fit under the top cover side panels so that they are not exposed.

Step 5 Secure the chassis cover with three screws.

Step 6 Reinstall the chassis on a rack, desktop, or table.

Step 7 Reinstall all interface cables.

HomeTOCPrevNextGlossSearchHelp
-

Copyright 1988-1996 © Cisco Systems Inc.