Banner
HomeTOCPrevNextGlossSearchHelp

PDF

Table of Contents

Cisco 7000 and Cisco 7507 Unpacking Instructions


Cisco 7000 and Cisco 7507 Unpacking Instructions

Cisco 7000 and Cisco 7507 Unpacking Instructions

Product Numbers: CISCO 7507, CHAS-7507, MAS-7507, CISCO 7000, MAS-7K, and CHAS-7K

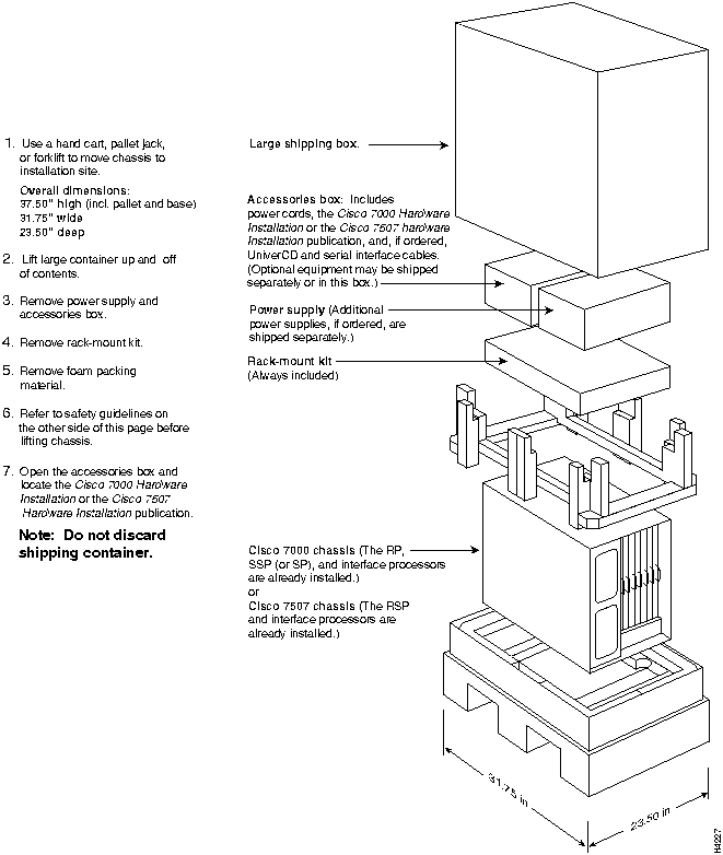
This document contains important instructions for unpacking the Cisco 7000 and Cisco 7507. This unpacking procedure is identical for both chassis, so for convenience, the Cisco 7000 and Cisco 7507 are referred to as the chassis, with any differences clearly noted. Review these instructions before you open the container. Keep the chassis in the shipping crate until the site is ready, then use a hand cart, pallet jack, or forklift to move the shipping container to the installation site. Note the outer container dimensions on the following illustration to ensure clearance through doors. After you unpack the chassis, refer to the Cisco 7000 Hardware Installation or Cisco 7507 Hardware Installation publication on Cisco Connection Documentation CD-ROM or in print for installation instructions.

When lifting the chassis, follow these precautions to avoid injury to yourself and/or damage to the equipment:

Before moving the chassis to a permanent site, we recommend that you review the site, safety, and environmental considerations provided in the Cisco 7000 Hardware Installation and Maintenance or Cisco 7507 Hardware Installation and Maintenance publication on Cisco Connection Documentation CD-ROM in print.

Do not destroy the shipping containers. Flatten and store them with the pallet and Corro clips. Use these containers to transport the chassis or, if necessary, to return it to the factory.

Figure 1 Packaging Detail for the Cisco 7000 and 7507

h4227.gif


Cisco Connection Online

Cisco Connection Online (CCO) is Cisco Systems' primary, real-time support channel. Maintenance customers and partners can self-register on CCO to obtain additional content and services.

Available 24 hours a day, 7 days a week, CCO provides a wealth of standard and value-added services to Cisco's customers and business partners. CCO services include product information, software updates, release notes, technical tips, the Bug Navigator, configuration notes, brochures, descriptions of service offerings, and download access to public and authorized files.

CCO serves a wide variety of users through two interfaces that are updated and enhanced simultaneously---a character-based version and a multimedia version that resides on the World Wide Web (WWW). The character-based CCO (called "CCO Classic") supports Zmodem, Kermit, Xmodem, FTP, Internet e-mail, and fax download options, and is excellent for quick access to information over lower bandwidths. The WWW version of CCO provides richly formatted documents with photographs, figures, graphics, and video, as well as hyperlinks to related information.

You can access CCO in the following ways:

For a copy of CCO's Frequently Asked Questions (FAQ), contact ciohelp@cisco.com. For additional information, contact cioteam@cisco.com.

fig_1.gif


Note If you are a network administrator and need personal technical assistance with a Cisco product that is under warranty or covered by a maintenance contract, contact Cisco's Technical Assistance Center (TAC) at 800 553-2447, 408 526-7209, or tac@cisco.com. To obtain general information about Cisco Systems, Cisco products, or upgrades, contact 800 553-6387, 408 526-7208, or csrep@cisco.com.

HomeTOCPrevNextGlossSearchHelp
-

Copyright 1988-1995 © Cisco Systems Inc.