Banner
HomeTOCPrevNextGlossSearchHelp

PDF

Table of Contents

Cisco 7513 Rack-Mount Kit Installation Instructions

Cisco 7513 Rack-Mount Kit Installation Instructions

Cisco 7513 Rack-Mount Kit Installation Instructions

Product Number: ACS-7000RMK(=)

This document provides instructions for installing a Cisco 7513 chassis in a 19-inch rack and a Telco rack. For complete system installation and startup procedures, refer to the Cisco 7513Hardware Installation and Maintenance publication.

The sections in this document include the following:

Caution Before installing the chassis in a rack or wiring closet, read the section "Safety Guidelines" on page 8 to familiarize yourself with the proper site and environmental conditions. Failure to read and follow these guidelines could result in an bodily injury or damage to the system chassis or components. The procedure in this document requires two or more people to perform.


Rack-Mount Kit Overview

This section describes the types of racks for which this rack-mounting kit is intended, and the mounting configurations that are possible with each type.


Note For convenience, throughout this document the Cisco 7513 will be referred to as the chassis.


Equipment Rack Descriptions

The rack-mount kit, Product Number ACS-7000RMK(=), is suitable for mounting the chassis in most 19-inch 2-post, 4-post, or Telco-type racks.


Note ACS-7000RMK(=) can also be used with the Cisco 7000 chassis.

The rack must have at least two mounting posts on which to mount the hardware, and the distance between the mounting holes in the two posts must be 18.31 inches ± .063 inches (as specified in the specification Electronic Industries Association (EIA)--310-C).

Figure 1 shows the three types of equipment racks described in this document:

  • Figure 1a shows a 2-post rack, which is usually a freestanding enclosed cabinet with two mounting posts in the front.

  • Figure 1b shows a Telco-type rack, which comprises two adjacent mounting posts that are usually secured to the floor and/or to an overhead structure.

  • Figure 1c shows a 4-post rack, which is usually a freestanding rack that can be either open or enclosed.

Figure 1 : Equipment Rack Types

h2348.gif


Rack-Mount Installation Summary

Following is a summary of the installation procedures required to rack-mount the chassis. This summary is informational and is not intended to replace the actual procedures required to rack-mount the chassis.

  1. Read the section "Prerequisites" starting on page 8.

  2. Verify that all mounting kit hardware is available; refer to the section "Mounting Kit Hardware."

  3. Install the brackets on the rack posts; refer to the section "Installing the Brackets" on page 17.

  4. Attach the spanner bars between the brackets; refer to the section "Attaching the Spanner Bars" on page 19.

  5. Attach the chassis ears to the chassis; refer to the section "Attaching the Chassis Ears" on page 20.

  6. Prepare the chassis for installation; refer to the sections "Preparing the Chassis and Installing the Chassis in a Rack" and "Chassis and Component Weights" on page 22. (This section includes information about the weight of the chassis and its components, and procedures for removing the power supplies, card cage assembly, processor modules, and blower module.)

  7. Install the chassis in the rack; refer to the section "Moving the Chassis into the Rack" on page 31.


Note The side flanges that attach the chassis to the rack-mount kit cannot be removed. This requires that you install the chassis as follows: if you want the front of the chassis oriented in the front of your rack, install the chassis from the rear of the rack; if you want the rear of the chassis oriented in the front of the rack, install the chassis from the front of your rack.

Throughout these installation procedures, refer to Figure 2, Figure 3, and Figure 4, in addition to the illustrations provided in the specific procedures.


Mounting Kit Hardware

The mounting kit comprises two brackets, two chassis ears (each holds two captive grommets), and fasteners (screws). On each bracket, the inner side has a turned ledge at the bottom to support the chassis, and non-conductive material to provide electrical isolation between the chassis and the rack. At the front of each bracket is a flange with five mounting holes at the top and three at the bottom.

Table 1 lists the parts that are included in the rack-mount kit. To verify that you received all the parts listed, refer to Table 1 and to Figure 2 on page 5. If any parts are missing, contact a service representative for assistance. (Refer to the section "Cisco Information Online" at the end of this document.)

Table 1 : Rack-Mount Kit Parts Checklist

Quantity Part Description Received
2 Mounting brackets (left and right are identical), each with an attached spanner bar
2 Chassis ears with captive grommets (left and right ears are identical)
4 M4 x 10-mm LG Phillips flat-head screws
12 10-32 x LG Phillips pan-head screws with integral square cone washers


Note As you perform the installation, refer to Figure 2 on page 5, Figure 3 on page 6, and Figure 4 on page 7, as well as to the detailed illustrations that follow.

Each of the two brackets mounts to a rack post with four 10-32 x 5/8-inch, Phillips pan-head screws, which are provided. The front of each bracket attaches to the front of the rack post, and the remainder of the bracket cantilevers off the post. A ledge at the bottom of each bracket provides a shelf for the bottom edges of the chassis.

A spanner bar on each bracket hooks into the opposite bracket to maintain an exact distance between the two brackets at both the ends attached to the rack posts and unattached ends. Spanner bars prevent the two brackets from separating. (See Figure 11 on page 20.)

Figure 2 shows the components in the rack-mount kit.

Figure 2 : Rack-Mount Kit Components

h3172.gif

One chassis ear attaches to each side of the chassis with two M4 x 10-mm, Phillips flat-head screws. When the chassis is in the rack, the mounting strips on the chassis ears attach to the rack-mounting posts with four 10-32 x 5/8-inch, Phillips pan-head screws (two for each ear).

The ledges at the bottom of the brackets support the weight of the chassis. The ears are not weight-bearing fixtures, but prevent the chassis from sliding out of the rack horizontally.


Note You do not need to attach both ends of the brackets to the rack rails; however, if you want to attach both ends, you might have to shorten the distance between the front and rear rack rails, which will require you to first remove all existing equipment from the rack.

In Telco-type installations, you can install the chassis so that the ends of the chassis are approximately centered on two posts. The chassis ears can be turned around to prevent the chassis from sliding horizontally. Figure 3 shows a typical center-mount installation.

fig_1.gif Caution To maintain a safe center of gravity in Telco-type installations (shown in Figure 3), the front and rear of the chassis are approximately centered on the mounting posts.

Figure 3 : Typical Center-Mount (Telco-Type) Installation

h3173.gif


Note Up to two rack kits can be installed in a rack with one inch of clearance between the top of the bottom chassis and the bottom of the top rack kit. Always install the bottom chassis first and as low in the rack as possible.

In a two-post, four-post, or Telco-type installation, you can flush-mount the chassis so that the end of the chassis is flush with the rack posts. Figure 4 shows a typical flush-mount installation.

Figure 4 : Typical Flush-Mount Installation (For Telco Racks Bolted to the Floor)

h3175.gif


Prerequisites

Before you begin this installation, review the safety guidelines in this section to avoid injuring yourself or damaging the equipment. This section also provides descriptions of the tools and parts you need to perform this installation, and guidelines for planning the rack location so that you can access the system components when necessary and maintain trouble-free operation.

If you are mounting a chassis that is already installed, you will need to disconnect all power and interface cables from the back of the chassis. Be sure to label the cables to avoid confusion when you reconnect them to the interface ports. The configuration worksheet provided near the end of this document can help you reconnect the cables to the correct ports. Make a copy of the worksheet and complete it as you disconnect cables from the chassis. (See Figure 25 and Table 2 on page 38.)


Note The side flanges that attach the chassis to the rack-mount kit cannot be removed. This requires that you install the chassis as follows: if you want the front of the chassis oriented in the front of your rack, install the chassis from the rear of the rack; if you want the rear of the chassis oriented in the front of the rack, install the chassis from the front of your rack.


Safety Guidelines

Review the following guidelines to help ensure your safety and protect the equipment from damage during the installation.


Safely Lifting the Cisco 7513

The Cisco 7513 chassis weighs 50 pounds (22.7 kilograms [kg]) when empty (with no interface processors, card cage, blower module, or power supplies installed) and 160 pounds (72.58 kg) with two power supplies and thirteen processor modules installed. The chassis is not intended to be moved frequently.

fig_17.gif Warning To prevent tipping the chassis when moving it, do not use a ramp inclined at more than 10 degrees.

Before you install the router, ensure that your site is properly prepared, so you can avoid having to move the chassis later to accommodate power sources and network connections.

Whenever you lift the chassis or any heavy object, follow these guidelines:

  • Never attempt to lift the Cisco 7513 by yourself. The size and weight of the chassis require two people to safely lift and move it without causing injury or damaging the equipment.

  • Ensure that your footing is solid, and balance the weight of the object between your feet.

  • Lift the object slowly; never move suddenly or twist your body as you lift.

  • Keep your back straight and lift with your legs, not your back. If you must bend down to lift the chassis, bend at the knees, not at the waist to reduce the strain on your lower back muscles. (See Figure 5.)

  • Grasp the underside of the chassis exterior with both hands.

  • Remove all power supplies before lifting the chassis. Each supply weighs 25 pounds (11.3 kg).

  • Leave the RSP2 processor(s) and all interface processors installed; each weighs approximately 2.5 pounds (1.13 kg).

  • Always disconnect all external cables before lifting or moving the chassis.

    fig_2.gif

Warning The chassis weighs approximately 75 pounds with just the blower module installed. To prevent injury, have someone help you lift the chassis, as shown in Figure 5.

Figure 5 : Correct Way to Lift the Chassis

h3118.gif

fig_3.gif Caution To prevent damage to the air intake vent below the card cage, do not lift the chassis by grasping the handle with one hand and the bottom of the card cage with the other, as shown in Figure 6. The air intake vent is not designed to support the weight of the chassis.

Figure 6 : Incorrect Way to Lift the Chassis

h3119.gif


Safety with Electricity

Follow these basic guidelines when working with any electrical equipment:

  • Before beginning any procedures requiring access to the chassis interior, locate the emergency power-off switch for the room in which you are working.

  • Disconnect all power and external cables before installing or removing a chassis.

  • Do not work alone if potentially hazardous conditions exist.

  • Never assume that power is disconnected from a circuit; always check.

  • Do not perform any action that creates a potential hazard to people or makes the equipment unsafe.

  • Carefully examine your work area for possible hazards such as moist floors, ungrounded power extension cables, and missing safety grounds.

    fig_4.gif

Warning To prevent injury, always disconnect all cables before moving or working on the chassis. When the chassis is disconnected from all power sources, telephone wiring can still deliver potentially lethal electrical surges.

When you replace the power supplies, remember to engage all of the safety features on each power supply. The power supplies feature the following three safety interlock features:

  • A safety interlock on/off switch prevents the power supply from being removed from the chassis when the power supply switch is in the on (|) position. When the switch is on, a metal tab extends into a slot in the chassis. When the switch is turned off (O), the tab retracts into the power supply housing and clears the slot.

  • A captive installation screw at the top of the power supply front panel provides electrical grounding and prevents the power supply from vibrating or sliding out of the bay and dislodging from the power connectors in the backplane.

  • A cable retention band (on the AC-input power supply) prevents the power cable from being accidentally pulled out of the power receptacle.

For a complete description of the power supply, refer to the Cisco 7513 Hardware Installation and Maintenance publication.


Working with Electrical Equipment

When working with any electrical equipment, the following guidelines will help to ensure your safety and protect the equipment. This list does not include all potentially hazardous situations, so be alert.

  • Never try to lift the chassis by yourself; two people are required to lift the Cisco 7513.

  • Always turn all power supplies off and unplug all power cords before installing or removing a chassis.

  • Keep the chassis area clear and dust free during and after the installation.

  • Keep tools and chassis components away from walk areas.

  • Keep your path clear between the chassis and the rack. When carrying large, heavy equipment such as the chassis, obstacles such as hand tools, cables, or components might not be easily visible and can cause accidents.


Equipment Rack Considerations

The rack-mount kit is suitable for mounting the Cisco 7513 in most 19-inch two-post, four-post, or Telco-type racks that conform to the EIA-310-C specification. The brackets, which support the chassis, cantilever off two rack posts. You can then mount the chassis with either end approximately flush with the two rack posts, or, in Telco-type installations, you can center-mount the chassis.

Before proceeding, review the guidelines in this section. Ensure that you have planned your installation carefully. Avoid hazards such as top-heavy or unbalanced racks, or cables or equipment that obstruct traffic paths and access to equipment.

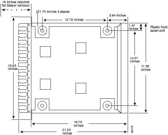
Figure 7 shows the chassis footprint and outer dimensions, and the clearance required to remove or install power supplies, processor modules, and the blower module.

Figure 7 : Cisco 7513 Chassis Footprint and Outer Dimensions

h3178.gif


Note Leave one inch of clearance above a chassis if you plan to install a second chassis above it. The chassis is approximately 34 inches tall.


Rack Ventilation

Planning a proper location for the router and the layout of your equipment rack is essential for successful system operation. Equipment placed too close together or inadequately ventilated can cause overtemperature conditions inside the chassis. In the Cisco 7513, the cooling air is drawn in through the rear of the chassis, and the exhaust air is forced out the front through the panel vent.

The following guidelines are recommended to ensure a sufficient flow of cooling air to the chassis:

  • Place the chassis in a location that enables the flow of cooling air through the chassis. Inhibiting the intake, blocking the exhaust, or allowing heated air to enter the intake can cause overtemperature conditions and cause the system to shut down.

  • Multiple Cisco 7513s can be stacked with a minimum of one-inch clearance in a rack.

  • Install the chassis in an open rack whenever possible. If installation in an enclosed rack is unavoidable, ensure that the rack has adequate ventilation or an exhaust fan.

Conversely, a ventilation system that is too powerful in a closed rack may also prevent cooling by creating negative pressure around the chassis and redirecting the air away from the chassis intake vent. If necessary, operate the chassis with the rack open.

  • Equipment near the bottom of a rack may generate excessive heat that is drawn upward and into the intake ports of equipment above, leading to overtemperature conditions in the chassis at or near the top of the rack.

For complete site requirements and recommendations, refer to the Cisco 7513 Hardware Installation and Maintenance publication.


Rack Stability

When installing one chassis in any rack that is not secured to the floor or overhead structure, place the chassis in the lower half of the rack. A fully configured Cisco 7513 weighs 160 lbs (72.58 kg), and a shift in the weight distribution (during the installation or later) can cause the rack to fall.

fig_18.gif Caution To maintain a low center of gravity in a rack with a single Cisco 7513 chassis, the chassis bottom should be no higher than 20 inches above the floor.

Also, when installing the chassis in Telco-type racks, ensure that the rack is secured to the floor or otherwise stabilized. Center-mount the chassis if possible (and practical for your installation). Doing so places the center of gravity closest to the center of the mounting posts. Figure 8 shows the center of gravity for both center-mounted and flush-mounted installations. (The center of gravity will shift somewhat depending on which end of the chassis is positioned at the front of the rack.)

Figure 8 : Chassis Center of Gravity for Telco Rack Configurations

h3176.gif


Rack Dimensions and Site Layout

To help maintain trouble-free operation, consider the following precautions when planning your rack installation:

  • Place the chassis in a location with sufficient access to power and network interface cables. Avoid straining cables or routing them near traffic paths or power cables (which can cause interference).

  • During the installation, allow sufficient working space around the rack. You will need at least three feet adjacent to the rack to lift the chassis and insert it, and two feet of clearance outside the power supply bays to insert power supplies.

  • After installation, allow at least two to three feet of clearance behind the rack for maintenance. Because the interface processor end of the router provides access to the power switches, processor slots, and status LEDs, we recommend that you mount the interface processor end at the most accessible side of the rack. You should be able to access both ends of the router without having to remove it from the rack.

  • Some equipment racks provide power strips along the length of one of the rear mounting strips. If your rack has this feature, consider the position of the strip when planning fastener points and determine whether you will install the chassis from the front or the rear of the rack. Power supplies are installed in the rear of the chassis, and power cables connected to the power strips might partially block access to the bay.

  • If your rack is enclosed, or if it has a door on the front, consider the following:

    • Temporarily removing the door may provide enough clearance for installation.

    • If the rack does not provide a rear door for access to the rear chassis panel, install the Cisco 7513 backwards in the rack so you can access the processor modules, blower module, and power supplies, and view the processor module LEDs; however, this orientation might place the chassis opposite from most of the other equipment in the rack.

  • Before using a particular rack, check for obstructions (such as power strips, cables, and so forth) that could impair access to the processor modules or power supplies at the interface processor end.


Note If you install the chassis from the rear of the rack, you must first remove the power strips from the inside edges of the rack rear because the chassis flanges protrude approximately 3/4-inch from the chassis sides and do no fit between the power strips on most racks. This might require you to first disconnect power to all other equipment in the rack before you remove the power strips. We recommend that you install the Cisco 7513 chassis in a new or empty rack to avoid having to remove the power strips.

If you install the chassis from the front of the rack (with the interface processor end of the chassis toward the front of the rack), you do not need to remove the power strips from the rack; however, this orientation might place the chassis opposite from most of the other equipment in the rack.


List of Parts and Tools

This section lists the tools you will need to complete this installation and the parts that are shipped as part of the rack-mount kit. Ensure that you have all the tools and parts required so that you can complete the installation without interruption.


Tools Required

You will need the following tools to install the mounting hardware and chassis in the rack:

  • Number 2 Phillips and 1/4-inch flat-blade screwdriver

  • Tape measure or level (both optional)

  • Ohmmeter if your installation requires the chassis to be electrically isolated from the rack

You also need the following tools to replace the power supplies after mounting the chassis:

  • A 3/16-inch flat-blade screwdriver for the captive screw.

  • You will need nylon cable ties to temporarily anchor the cables out of the way while you install the power supplies (if cables from other equipment fall in front of the power supply bays) and at least two nylon cable ties for each DC-input power supply cable (if you have these).

Before beginning the power supply installation, check the captive installation screws on all power supplies to determine which tools you will need.


Installation

The following sections describe the procedures for mounting the chassis in a 19-inch equipment rack with two or four mounting posts or a Telco-type rack.

Before proceeding, review the guidelines and recommendations in the section "Prerequisites" on page 8 to protect your safety, to maintain sufficient clearance around the rack during and after the installation, and to ensure proper airflow through the chassis after the installation.

fig_6.gif Warning To avoid potentially serious bodily injury, this procedure requires two or more people to perform.

Some equipment racks provide a power strip along the length of one of the rear mounting strips. If your rack has this feature, we recommend that you fasten the brackets and install the interface processor end of the chassis at the opposite side of the rack.


Note If you install the chassis from the rack rear, you must first remove the power strips from the inside edges of the rack rear because the chassis flanges protrude approximately 3/4-inch from the chassis sides and do no fit between the power strips in most racks. This might require you to first disconnect power to all other equipment in the rack before you remove the power strips. We recommend that you install the Cisco 7513 chassis in a new or empty rack to avoid having to remove the power strips.

If you install the chassis from the front of the rack (with the interface processor end of the chassis toward the front of the rack), you do not need to remove the power strips from the rack; however, this orientation might place the chassis opposite from most of the other equipment in the rack.


Installing the Brackets

The two brackets provided in the rack-mounting kit are identical. The inner side of each bracket has a ledge at the bottom to support the undersides of the chassis, and shielding to provide electrical isolation between the chassis and the rack. A flange on the front of each bracket provides five mounting holes at the top, and three at the bottom. Mount the bracket with the flange in front of the rack post, and with the inner (shielded) side facing the center of the rack. The ledge should be at the bottom of the bracket. (See Figure 9.) To maintain a low center of gravity, mount the brackets in the rack at the lowest point as possible.

fig_19.gif Caution To maintain a low center of gravity in a rack with a single Cisco 7513 chassis, the chassis bottom should be no higher than 20 inches above the floor.

Figure 9 : Positioning a Bracket

h2288.gif

The cutouts in the brackets are to accommodate the ear brackets that fasten the Cisco 7000 chassis to the rack. The chassis ears mount farther up on the Cisco 7513 chassis.


Note If possible (if the holes line up), use the top-most and bottom-most mounting holes in the bracket. Always use the bottom mounting hole on the bracket. If the top mounting hole does not line up with a hole in the rack post, use one of the other two holes near the top of the bracket.


Mounting the Brackets to the Rack Posts

Follow these steps to mount each bracket to a rack post:

Step 1 Measure the space between the inner edges of the left front and right front equipment rack-mounting posts to ensure that it is at least 17.72 inches. The chassis is 17.5 inches wide and must fit between the mounting posts.

Step 2 Measure the distance between the holes in the mounting posts to ensure that it is 18.31 inches ± .063 inches. Make several measurements down the length of the posts to ensure they are parallel.

Step 3 Holding the first bracket in the position shown in Figure 10, place the bracket on the inner side of the rack post, with the flanged front edge of the bracket in front of the rack post. To maintain a low center of gravity, mount the brackets in the rack at the lowest point as possible.

Figure 10 : Installing a Bracket on a Rack Post (Left Bracket Shown)

h2289.gif

Step 4 Slide the bracket up and down along the mounting post to align the mounting holes in the bracket with those in the rack post.

Step 5 While supporting the bracket with one hand, use the other hand to insert a 10-32 x 5/8-inch, Phillips pan-head screw through the bottom mounting hole on the front of the bracket and into the rack post. (See Figure 10.)

Step 6 Insert and finger tighten a second screw just above the first screw.

Step 7 Secure the top of the bracket to the rack with two more pan-head screws. Finger tighten these screws. Finger tighten the pan-head screws, but do not completely tighten them because you will need to adjust them when you attach the spanner bars later.

Step 8 Repeat steps 3 through 7 for the remaining bracket. Use a level or tape measure to ensure that the two brackets are level in the rack.

fig_23.gif Caution To ensure adequate space between the brackets, and to ensure the chassis stays in the rack, push the brackets as far apart as possible before tightening the screws that secure them.

Step 9 Measure the horizontal distance between the left and right brackets. The distance must be greater than 17.5 inches for the chassis to clear the brackets; adjust the rack's mounting strips as required.


Note If you plan to install a second chassis in the rack, ensure that the distance between the top of the bottom chassis and the lowest point of the second rack brackets is at least one inch. Install the bottom chassis as low in the rack as possible.

To position and secure the spanner bars, proceed to the next section.


Attaching the Spanner Bars

The spanner bar on each bracket hooks into the opposite bracket to maintain a fixed spacing between the two brackets. The spanner bars prevent the brackets from separating or drifting apart, particularly at the bracket ends that are not secured to the rack.

Follow these steps to secure the spanner bars:

Step 1 Loosen the 10-32 x 5/8-inch, Phillips pan-head screw in the end of the ledge of the right-side bracket. (See Figure 11b.) This screw is the anchor for the spanner bar.

Step 2 Remove the tape that secures the spanner bar on the left bracket, and swing the bar down (see Figure 11a) over the anchor screw on the opposite bracket. (See Figure 11b.)

Step 3 If the spanner bar does not reach the opposite bracket, loosen the pan-head screws to allow more play between the brackets, and adjust the brackets as required.

Step 4 When the first spanner bar is secured, go around to the other side of the rack and repeat steps 1 through 3 to fasten the remaining spanner bar to its anchor screw. (See Figure 11c.)

fig_33.gif Caution To ensure adequate space between the brackets and a proper chassis fit, push the brackets as far apart as possible before tightening the screws that secure them and the spanner bars.

Figure 11 : Positioning and Fastening a Spanner Bar

h2294.gif

Step 5 When both spanner bars are in place, use a number 2 Phillips screwdriver to tighten the six pan-head screws that secure the brackets to the rack-mounting posts and the two anchor screws that secure the spanner bars.

When tightening the pan-head screws on a bracket, push the bracket outward, away from the center of the rack, to ensure that the brackets remain at least 17.5 inches apart (otherwise the chassis will not fit between the brackets).

This completes the bracket installation.

To install the ears on the chassis, proceed to the next section.


Attaching the Chassis Ears

The ears attach directly to the chassis with four M4 x 10-mm, flat-head screws (two on each side).

Attach the ears to the chassis before you slide the chassis onto the brackets and into the rack. After you slide the chassis into the rack, insert a 10-32 x 5/8-inch pan-head screw through each of the captive grommets on the ears and through the rack-mounting strips.

The ears do not bear the weight of the chassis, but prevent it from walking, or sliding horizontally out of the rack.

In Figure 12, inserts on the right show how the ears attach to the chassis for center mounting and flush mounting.

Figure 3, on page 6, shows a typical center-mount installation and Figure 4, on page 7, shows a typical flush-mount installation.

In some Telco-type racks, it is more practical to center-mount the chassis. To do so, flip the ears around so that the mounting strips are near the center of the side of the chassis. In Figure 12, the upper insert on the right shows how the ears attach to the chassis for center mounting.

Figure 12 : Installing the Ears on the Chassis

h3174.gif

Follow these steps to install the ears on the chassis:

Step 1 While referring to Figure 12, position the ears on the chassis as follows:

  • To flush-mount the chassis (so that the end of the chassis is approximately flush with the rack posts): Place each ear so that the mounting strips are toward the interface processor end of the chassis, and align the mounting holes in the ear with those in the chassis.

  • To center-mount the chassis (so that the chassis is roughly centered in a Telco-type rack): Place each ear with the mounting strips away from the interface processor end of the chassis, and align the mounting holes in the ear with those in the chassis.

Step 2 Use two M4 x 10-mm, flat-head Phillips screws to secure each ear to the chassis. Tighten the screws, but do not overtighten them.

Proceed to the next section to install the chassis in the rack.


Preparing the Chassis and Installing the Chassis in a Rack

Two people are required to lift the chassis and complete this part of the installation.

You will need to lift the chassis and slide it into the rack and onto the ledges provided by the brackets. After you push the chassis back into the rack, you will attach the ears to the rack-mounting strips to prevent the chassis from sliding forward or backward out of the rack.

Before moving the chassis, we recommend that you disconnect all power and interface cables and that you remove both power supplies and all processor modules.

Removing the card cage assembly and blower module is recommended before installing the chassis, but is not required; their combined weight is approximately 25 pounds.


Note It is possible to lift and move the chassis with power supplies, processor modules, and card cage assembly installed; however, we do not recommend it.


Chassis and Component Weights

If you choose not to remove the power supplies, processor modules, blower module, and card cage assembly, consider the following:

  • Each processor module weighs 2.5 pounds (1.13 kg).

  • Each power supply weighs 25 pounds (11.34 kg).

  • The card cage assembly weighs approximately 15 pounds (6.8 kg)

  • The blower module weighs approximately 10 pounds (4.55 kg)

  • The chassis, fully configured with two power supplies and all thirteen slots filled, weighs approximately 160 pounds (72.6 kg).

  • To lighten the chassis by approximately 110 pounds (49.9 kg), remove the power supplies, processor modules (assuming all thirteen slots are filled), card cage assembly, and blower module before moving the chassis into the rack. (This is the recommended configuration for rack installation.)

  • To lighten the chassis by approximately 100 pounds (40.8 kg), remove the power supplies, processor modules (assuming all thirteen slots are filled), and card cage assembly before moving the chassis into the rack. (This is the recommended configuration for rack installation.)

  • To lighten the chassis by approximately 85 pounds (38.6 kg), remove only the power supplies and processor modules before moving the chassis into the rack.

  • To lighten the chassis by approximately 50 pounds (22.7 kg), remove only the power supplies before moving the chassis into the rack.


Note The following sections discuss removing and replacing the power supplies and card cage in the chassis, and placing the chassis in the rack.

If you are installing a new chassis or, if you have already disconnected all power and interface cables and removed all power supplies, processor modules, and the card cage assembly, proceed to the section "Moving the Chassis into the Rack" on page 31.


Removing Power Supplies, Blower Module, and the Card Cage Assembly

Before you remove the card cage assembly, you must remove the power supplies.

On AC-input and DC-input power supplies, a power switch with a locking mechanism prevents the power supply from being removed from the chassis when the power supply switch is in the ON (|) position. (See Figure 13.) When the switch is on, a metal tab extends into a slot in the chassis. When the switch is OFF (O), the tab is raised and clears the slot.

For the DC-input power supply, you must provide two nylon cable ties for cable strain relief. Replace the strain relief with new nylon cable ties after you replace the DC-input power supply. In addition to a large slotted screwdriver, you also need a pair of wire cutters for this procedure.

Figure 13 : Power Switch Locking Mechanism for Power Supplies

h3031.gif


Order of Procedures

If you have AC-input power supplies, refer to the following sections:

  1. "Removing AC-Input Power Supplies" on page 27.

  2. "Removing the Blower Module" on page 28.

  3. "Removing the Card Cage Assembly" on page 29.

  4. "Moving the Chassis into the Rack" on page 31.

  5. "Replacing the Card Cage Assembly" on page 34.

  6. "Replacing AC-Input Power Supplies" on page 36.

If you have DC-input power supplies, do the following:

  1. "Removing DC-Input Power Supplies" on page 24.

  2. "Removing the Blower Module" on page 28.

  3. "Removing the Card Cage Assembly" on page 29.

  4. "Moving the Chassis into the Rack" on page 31.

  5. "Checking Electrical Isolation" on page 33.

  6. "Replacing the Card Cage Assembly" on page 34.

  7. "Replacing DC-Input Power Supplies" on page 34.


Removing DC-Input Power Supplies

Follow these steps to remove a DC-input power supply.

Step 1 Turn OFF (O) the system power switch on the power supply you are going to remove.


Note If the power supply is not connected to the DC power source, skip to Step 5; otherwise, proceed top Step 2.

fig_20.gif Warning This warning applies only to units equipped with DC input power supplies. Before performing any of the following procedures, ensure that power is removed from the DC circuit. To ensure that all power is OFF, locate the circuit breaker on the panel board that services the DC circuit, switch the circuit breaker to the OFF position, and tape the switch handle of the circuit breaker in the OFF position. (To see translated versions of this warning, refer to page 39.)

Step 2 If the power supply is connected to the DC power source, turn OFF the circuit breaker to which the system is connected and tape the breaker switch in the OFF position.

fig_21.gif Warning This unit might have more than one power cord. To reduce the risk of electric shock, disconnect the two power supply cords before servicing the unit. (To see translated versions of this warning, refer to page 40.)

Step 3 Loosen the screws on the terminal block cover. (See Figure 14.)

fig_22.gif Warning This warning applies only to units equipped with DC input power supplies. Figure 1-4 shows the Cisco 7513 DC power supply terminal block. Wire the DC power supply using the appropriate lugs at the wiring end as shown in Figure 1-4. The proper wiring sequence is ground to ground, positive to positive (line to L), and negative to negative (neutral to N). Note that the ground wire should always be connected first and disconnected last. (To see translated versions of this warning, refer to page 41.)

Step 4 Slide the terminal block cover in the direction of the large arrow in Figure 14.

Figure 14 : Removing and Replacing the Terminal Block Cover

h3033.gif

Step 5 Use the large slotted screwdriver to loosen the captive screw that secures the power supply to the chassis frame. (See Figure 15.)

Figure 15 : Removing a DC-Input Power Supply

h3171.gif

Step 6 Grasp the power supply handle and pull the power supply about halfway out of the bay. Then with your other hand under the power supply, pull it completely out of the bay. (See Figure 16.)

Figure 16 : Supporting the DC-Input Power Supply

h3030.gif

fig_15.gif Caution To maintain agency compliance requirements and meet EMI emissions standards in a Cisco 7513 chassis with a single power supply, the power supply blank must remain in the power supply bay adjacent to the power supply. Do not remove this blank from the chassis unless you do so to install a redundant power supply. To prevent system problems, do not mix AC-input and DC-input power supplies in the same chassis.


Removing AC-Input Power Supplies

Follow these steps to remove an AC-input power supply.

Step 1 Turn OFF (O) the system power switch on the power supply you are going to remove.

Step 2 Disconnect the power cable from the power receptacle of the power supply you are removing.

fig_24.gif Warning This unit might have more than one power cord. To reduce the risk of electric shock, disconnect the two power supply cords before servicing the unit. (To see translated versions of this warning, refer to page 40.)

Step 3 Use a large slotted screwdriver to loosen the captive screw that secures the power supply to the chassis frame. (See Figure 17.) Only loosen the captive screw of the power supply you are removing.

Figure 17 : Removing and Replacing an AC-Input Power Supply

h3117.gif

Step 4 Grasp the power supply handle and pull the power supply about halfway out of the bay. Then with your other hand under the power supply, pull it completely out of the bay. (See Figure 18.)

Figure 18 : Supporting the AC-Input Power Supply

h3029.gif

fig_9.gif Caution To maintain agency compliance requirements and meet EMI emissions standards in a Cisco 7513 chassis with a single power supply, the power supply blank must remain in the power supply bay adjacent to the power supply. Do not remove this blank from the chassis unless you do so to install a redundant power supply. To prevent system problems, do not mix AC-input and DC-input power supplies in the same chassis.


Removing the Blower Module

When viewing the chassis from the noninterface processor end, the blower module is located above the card cage (See Figure 19.) Two slotted captive screws hold the blower module in place.

fig_16.gif Warning It is not necessary to turn OFF system power before removing the blower module; however, when the power is ON and the blower module is removed, high current is exposed on the blower module power connector at the backplane.

Follow these steps to remove and replace the blower module.

Step 1 Use a flat-blade screwdriver to loosen the captive screws that fasten each end of the blower module to the chassis. (See Figure 19.)

fig_32.gif Warning Although the system should not be operating when you remove the blower module, it is not necessary to turn OFF system power before removing the blower module. However, with the system power ON and the blower module removed, high current is exposed on the blower module power connector at the backplane; do not insert conductive items into the empty blower module opening. After an operating blower module is removed, the blower impeller blades will continue to spin for approximately two minutes; do not insert anything into the module's vent holes while the impeller is spinning.

Step 2 Grasp the handle on the front of the module and slowly pull the blower module straight out of the chassis. (See Figure 19.)

Figure 19 : Removing and Replacing the Blower Module

h3038.gif

This completes the blower module removal procedure.


Removing the Card Cage Assembly

The card cage consists of one assembly that includes the card cage and backplane, which can be removed and replaced as required. There are no wires, harnesses, or connectors. The assembly slides into and out of the chassis and attaches to the chassis frame with four slotted, captive screws. (See Figure 21.)

For this procedure, you will need one large flat-blade screwdriver, an antistatic bag for each removed processor module, or several antistatic mats or pieces of antistatic foam.

fig_11.gif Timesaver Before you can remove the card cage and backplane assembly, you must remove all processor modules and both power supplies. Plan this procedure so that you can minimize its effects on your system.

Temporarily place removed processor modules in the collapsible, black-cardboard board racks that were provided with your packing material, as shown in Figure 20.

Figure 20 : Board Rack with Processor Modules

h3589.gif

Following is the procedure to replace the card cage and backplane assembly:

Step 1 Turn the power switch on each power supply to the OFF position (O).

Step 2 Disconnect the power cable from each power supply (if attached); then remove each power supply and set it aside. (Refer to the section "Removing DC-Input Power Supplies" on page 24 or the section "Removing AC-Input Power Supplies" on page 27.)

Step 3 Remove all processor modules from the chassis card cage and carefully store them in the black-cardboard board racks provided with the packaging.

Make a note of the processor module slot and port numbers using the configuration worksheet in Table 2 on page 38. (Also refer to Figure 25.) Do not stack the processor modules one on top of another. It is possible to remove the card cage from the chassis with the processor modules installed; however, it is not recommended. Thirteen processor modules add 32.5 pounds (14.7 kg) and make the card cage assembly difficult to manage.

Step 4 With the processor modules and power supplies removed, loosen the four large captive screws located to the left and right of the card cage opening. (See Figure 21.)

fig_12.gif Caution Unless the chassis is mounted in a rack, or otherwise anchored, the chassis might move toward you when you pull out the card cage and backplane assembly. To prevent injury, have a second person hold the chassis in place while you pull the card cage and backplane assembly from the chassis in the following step.

Step 5 With the captive screws loosened, carefully pull the card cage and backplane assembly straight out of the chassis until the entire assembly is clear of the chassis sides. (See Figure 21.) The assembly is not heavy, but might be awkward to handle.

Step 6 When the card cage and backplane assembly is completely free of the chassis, carefully place it on an antistatic mat or foam.

fig_13.gif Caution The electronic components on the rear of the backplane are completely exposed when the card cage and backplane assembly is removed from the chassis. To prevent damaging these components, place the card cage and backplane assembly on an antistatic mat or foam, and place the assembly in the same orientation as when it is mounted in the chassis. (See Figure 21.)

Figure 21 : Removing and Replacing the Card Cage and Backplane Assembly

h3096.gif


Moving the Chassis into the Rack

Two people are required to lift the chassis and insert it into the rack.

The chassis weighs approximately 75 pounds (34.02 kg) when the power supplies and processor modules are removed. Make sure that your path to the rack is not obstructed.

You will insert the front end of the chassis into the rack, lower it onto the two ledges on the brackets, and then slide the chassis back until the ears meet the rack-mounting posts.

fig_5.gif Caution To avoid damaging power supplies and interface processors, never attempt to lift the chassis using the handles on the power supplies or the interface processors, or the intake air vent beneath the card cage. These areas are not designed to support the weight of the chassis. Using them to lift or support the chassis can result in severe damage to the equipment and serious bodily injury.


Note If you have not already done so, review the safety guidelines in the section "Safely Lifting the Cisco 7513" on page 8, and refer to Figure 5 and Figure 6. The side flanges that attach the chassis to the rack-mount kit cannot be removed. This requires that you install the chassis as follows: if you want the front of the chassis oriented in the front of your rack, install the chassis from the rear of the rack; if you want the rear of the chassis oriented in the front of the rack, install the chassis from the front of your rack.

Follow these steps to install the chassis in the rack:

Step 1 Two people are required to perform this step. With a person positioned at either side of the chassis, grasp the bottom edge of the chassis with one hand near the front and the handle on the side of the chassis with the other.

Step 2 Slowly lift the chassis in unison. To prevent injury, avoid sudden twists or moves. (See Figure 5 on page 9.)

Step 3 With the chassis positioned so the front is closest to the rack, insert the front of the chassis into the rack between the brackets, then slowly lower the chassis until it rests on the two bracket ledges. (See Figure 22.)

Figure 22 : Sliding the Chassis into the Rack (Shown with Card Cage Assembly and Blower Installed)

h3177.gif

Step 4 Slide the chassis back into the rack along the ledges until the ears meet the front mounting posts on both sides of the rack. (See Figure 22.)

Step 5 Secure each ear to the rack-mounting post with two 10-32 x 5/8-inch, Phillips pan-head screws.

This completes the procedure for moving the chassis into the rack.


Note If you have DC-input power supplies, your installation requires that the chassis be electrically isolated from the rack; proceed to the next section "Checking Electrical Isolation." If you have AC-input power supplies, proceed to the section "Replacing the Card Cage Assembly" on page 34 and then to the section "Replacing AC-Input Power Supplies" on page 36.


Checking Electrical Isolation

The inner sides of the mounting brackets and the grommets on the chassis ears are shielded to isolate the chassis from contact with the equipment rack. If your installation requires that the chassis be electrically isolated from the rack, ensure that there are no conductive contact points between the chassis and the rack before replacing the power supplies.

Use an ohmmeter to perform the following test:

Step 1 Zero out the ohmmeter.

Step 2 Place one probe on an unpainted metal surface on the rack, and place the other probe on an unpainted metal surface on the chassis (such as inside the power supply bay).

Step 3 If the ohmmeter indicates an open circuit, the chassis is electrically isolated from the rack. If the ohmmeter indicates a closed circuit (0 ohms), there is at least one contact point between the chassis and the rack. Do not install the power supplies until you locate and resolve all points of contact between the chassis and the rack.

If you removed the blower module, proceed to the section "Replacing the Blower Module."

If you did not remove the blower module, proceed to the section "Replacing the Card Cage Assembly" on page 34, and then to the section "Replacing DC-Input Power Supplies" on page 34.

If you are performing an initial installation, proceed to the appropriate hardware and software installation guides.


Note If you are installing a new system, proceed to the Cisco 7513 Hardware Installation and Maintenance publication for cabling guidelines and further instructions. First-time startup and troubleshooting procedures are not covered in this rack-mount installation document.


Replacing the Blower Module

If you removed the blower module, follow these steps to replace it:

Step 1 Using Figure 19 on page 28, hold the blower module handle with either your right or left hand (as long as you use both hands to handle the module), and with the intake vents on the blower module facing down and the "Insert This Side Up" label facing you, insert the module into the chassis. Keep the module as straight as possible as you guide it into the chassis.

Step 2 When the blower is all the way into the chassis opening, tighten the captive installation screws on the front of the blower module. (See Figure 19.)

This completes the blower module replacement procedure.

Proceed to the section "Replacing the Card Cage Assembly" on page 34, and then to the section "Replacing DC-Input Power Supplies" on page 34.


Replacing the Card Cage Assembly

Following is the procedure for replacing the card cage assembly:

Step 1 To replace the card cage and backplane assembly, carefully lift the assembly, place it into the chassis opening, and slide the assembly into the chassis opening until the left and right flanges on the card cage are flush with the chassis flanges.

Step 2 Squeeze the card cage and chassis flanges together and tighten each captive screw. (See Figure 21.) Do not overtighten the captive screws.

fig_14.gif Caution The electronic components on the rear of the backplane are completely exposed when the card cage and backplane assembly is removed from the chassis. To prevent damaging these components, carefully slide the assembly into the chassis opening. (See Figure 21.)

Step 3 Replace all the processor modules you removed earlier. Use the configuration worksheet in Table 2 to install the interface processors in the correct slots and to connect the interface cables to the correct interface ports.

This completes the card cage assembly replacement procedure.

If you have DC-input power supplies, proceed to the section "Replacing DC-Input Power Supplies," which follows.

If you have AC-input power supplies, proceed to the section "Replacing AC-Input Power Supplies" on page 36.


Replacing DC-Input Power Supplies

Follow these steps to replace a DC-input power supply. Use only copper conductors to connect the DC-input terminals.

Step 1 Hold the supply as shown in Figure 16 and slide it into the power supply bay. Push the supply all the way into the chassis until the sides are flush against the chassis frame.

Step 2 Use the large slotted screwdriver to tighten the captive screw that secures the power supply to the chassis frame. (See Figure 15.)

Step 3 Attach the ground wire to the ground terminal. (See Figure 23.)

Step 4 Attach and tighten the positive (+) and negative (--) leads to the terminal block. (See Figure 23.) Verify that you are connecting the appropriate leads to the correct terminal block posts.

Step 5 Check the power supply's wiring and color code to verify that it matches the wiring and color code at the DC source.

fig_8.gif Warning Incorrectly wiring the terminal block could create a shock hazard and could damage the power supply, power source, and the chassis components.

Step 6 Replace the terminal block cover. (Refer to Figure 14 on page page 25.)

fig_28.gif Warning This warning applies only to units equipped with DC input power supplies. After wiring the DC power supply, remove the tape from the circuit breaker switch handle and reinstate power by moving the handle of the circuit breaker to the ON position. (To see translated versions of this warning, refer to page 43.)

Step 7 After the DC power cable leads are reconnected and the terminal cover is replaced, reconnect the power cable at the power source.

Step 8 Attach two nylon cable ties around the bracket and around the cable, as shown in Figure 23. These cable ties provide strain relief for the cable.

Figure 23 : Removing and Replacing the DC-Input Power Cable

h3034.gif

fig_30.gif Warning This warning applies only to units equipped with DC input power supplies. When stranded wiring is required, use approved wiring terminations, such as closed-loop or spade-type with upturned lugs. These terminations should be the appropriate size for the wires and should clamp both the insulation and conductor. (To see translated versions of this warning, refer to page 42.)

Step 9 If you are replacing both power supplies, repeat Steps 1 through 8 for the second power supply.


Note When you turn ON power to the new power supply, the DC OK LED and the fan OK LED will go on and stay on. No other LEDs should go on

This completes the DC-input power supply replacement procedure. Proceed to the section "Replacing the Card Cage Assembly."


Replacing AC-Input Power Supplies

The chassis requires a minimum of 20-amp service, with a 20-amp receptacle at the power source. The power cable supplied with the chassis uses a 20-amp male plug. Figure 24 shows the cable connector plug and the 20-amp receptacle required to connect the 20-amp cable to your AC source.


Note Wiring codes prevent this type of power cable from being used with the power strips in equipment racks.

Figure 24 : 20-Amp AC Power Cable Connector and Plug, and 20-Amp Receptacle

h3164.gif

Follow these steps to replace an AC-input power supply:

Step 1 Hold the supply as shown in Figure 18 and slide it into the power supply bay. Push the power supply all the way into the chassis until the sides are flush against the chassis frame.

Step 2 Use the large slotted screwdriver to tighten the captive screw that secures the power supply to the chassis frame. (See Figure 17.)

Step 3 When the AC power cable is reconnected to the power supply, reconnect it at the power source, but do not turn ON power to the new power supply.

Step 4 If you are replacing both power supplies, repeat Steps 1 through 3 for the second power supply.


Note When you turn ON power to the new power supply, the AC OK LED and the fan OK LED will go on and stay on. No other LEDs should go on

This completes the AC-input power supply replacement procedure.

Proceed to the section "Replacing the Card Cage Assembly."


Restarting the System

To complete the installation you must perform a final check of all connections, and then restart the system. This procedure is not for new systems; perform this procedure only if you have already connected the network interfaces and performed the first-time startup procedures in the Cisco 7513 Hardware Installation and Maintenance publication.

Follow these steps to restart the system and verify that the system restarts successfully:

Step 1 Check the following components to make sure they are secure:

  • Processor modules are fully inserted in the slots and all captive screws are tightened.

  • Interface cable connections are secured.

  • Power supplies are fully inserted in the bays, and the captive screws are tightened.

  • Power supply cables are fully connected to the power supplies and the power source, and secured with appropriate strain relief.

Step 2 Ensure that a console terminal is connected to the RSP2 console port and turned on, or that you have a remote login to the router from another device through a Telnet session. (You will need to check the startup banner and displays to ensure that the system restarts properly and that all the interfaces reinitialize in the proper state.)

Step 3 When you have checked all the connection points, turn on the power supply in the power A bay by turning its power switch clockwise one-quarter turn. The OK LED on the power supply and the power A LED on the front of the chassis should go on.

Step 4 After the power supply in power bay A is on, turn the power supply on in the power B bay (if one is present for redundant power). The OK LED on the power supply and the power B LED on the front of the chassis should go on.


Note If you try to turn on a power supply and the switch resists, the power supply probably is not fully inserted into the bay. Turn the power switch fully counterclockwise (to O), pull the power supply out of the bay about two inches, then push the power supply firmly back into the slot. Do not slam the supply into the slot---doing so can damage the connectors on the supply and the backplane. Tighten the captive installation screw before turning on the switch.

Step 5 Listen for the system blower. You should hear it start operating immediately.

Step 6 On the console terminal, verify that the console displays the system banner and that the system and all interfaces initialize successfully. Following is an example of this display.


(display text omitted)
GS Software (RSP-K), Version 10.3(571)
Copyright (c) 1986-1995 by cisco Systems, Inc.
Compiled Wed 10-May-95 25:12

RSP2 (Risc 4600) processor with 16384K bytes of memory.
(display text omitted)
1 EIP controller (2 Ethernet).
8192K bytes of flash memory on embedded flash (in RSP2).

If the power supplies do not start up, or if the system or any interfaces do not initialize properly, refer to the Cisco 7513 Hardware Installation and Maintenance publication for additional information and installation troubleshooting procedures. If necessary, contact a service representative. (See the following section "Cisco Information Online.")

Figure 25 : Slot Numbering (Use with Table 2)

h3090.gif

Table 2 : Port and Slot Configuration Worksheet (Refer to Figure 25)

Port Slot 0 Slot 1 Slot 2 Slot 3 Slot 4 Slot 51 Slot 8 Slot 9 Slot 10 Slot 11 Slot 12
1
2
3
4
5
6
7
8
Router Name Location Serial Number

1 Slots 6 and 7 are reserved for the RSP2.


Translated Safety Warnings

This section repeats in multiple languages the warnings in this guide.


Note Ultimate product disposal will be made according to national laws and regulations.

Following are translations for the warning statements used in this text.


DC Power Disconnection Warning

fig_25.gif Warning This warning applies only to units equipped with DC input power supplies. Before performing any of the following procedures, ensure that power is removed from the DC circuit. To ensure that all power is OFF, locate the circuit breaker on the panel board that services the DC circuit, switch the circuit breaker to the OFF position, and tape the switch handle of the circuit breaker in the OFF position.

Waarschuwing Deze waarschuwing geldt slechts voor toestellen die voorzien zijn van voedingen met gelijkstroom ingang. Voordat u een van de onderstaande procedures uitvoert, dient u te controleren of de stroom naar het gelijkstroom circuit uitgeschakeld is. Om u ervan te verzekeren dat alle stroom UIT is geschakeld, kiest u op het schakelbord de stroomverbreker die het gelijkstroom circuit bedient, draait de stroomverbreker naar de UIT positie en plakt de schakelaarhendel van de stroomverbreker met plakband in de UIT positie vast.

Varoitus Seuraava varoitus koskee ainoastaan tasavirran syöttövirtalähteellä varustettuja laitteita. Varmista, että tasavirtapiirissä ei ole virtaa ennen seuraavien toimenpiteiden suorittamista. Varmistaaksesi, että virta on KATKAISTU täysin, paikanna tasavirrasta huolehtivassa kojetaulussa sijaitseva suojakytkin, käännä suojakytkin KATKAISTU-asentoon ja teippaa suojakytkimen varsi niin, että se pysyy KATKAISTU-asennossa.

Attention Cet avertissement ne s'applique qu'aux unités équipées d'alimentations en courant continu. Avant de pratiquer l'une quelconque des procédures ci-dessous, vérifier que le circuit en courant continu n'est plus sous tension. Pour en être sûr, localiser le disjoncteur situé sur le panneau de service du circuit en courant continu, placer le disjoncteur en position fermée (OFF) et, à l'aide d'un ruban adhésif, bloquer la poignée du disjoncteur en position OFF.

Warnung Diese Warnung gilt nur für Einheiten, die mit Gleichstrom-Netzgeräten ausgestattet sind. Vor Ausführung der folgenden Vorgänge ist sicherzustellen, daß die Gleichstromschaltung keinen Strom erhält. Um sicherzustellen, daß sämtlicher Strom abgestellt ist, machen Sie auf der Schalttafel den Unterbrecher für die Gleichstromschaltung ausfindig, stellen Sie den Unterbrecher auf AUS, und kleben Sie den Schaltergriff des Unterbrechers mit Klebeband in der AUS-Stellung fest-

Avvertenza Questa avvertenza riguarda solo le unità dotate di alimentatori con ingresso CC. Prima di svolgere una qualsiasi delle procedure seguenti, verificare che il circuito CC non sia alimentato. Per verificare che tutta l'alimentazione sia scollegata (OFF), individuare l'interruttore automatico sul quadro strumenti che alimenta il circuito CC, mettere l'interruttore in posizione OFF e fissarlo con nastro adesivo in tale posizione.

Advarsel Denne advarselen gjelder kun for enheter som er utstyrt med strømforsyningsenheter for likestrøm. Før noen av disse prosedyrene utføres, kontroller at strømmen er frakoblet likestrømkretsen. Sørg for at all strøm er slått AV. Dette gjøres ved å lokalisere strømbryteren på brytertavlen som betjener likestrømkretsen, slå strømbryteren til AV-stilling og teipe bryterhåndtaket på strømbryteren i AV-stilling.

Aviso Este aviso aplica-se apenas a sistemas equipados com unidades de entrada de fornecimento de corrente contínua. Antes de executar um dos seguintes procedimentos, certifique-se que desligou a fonte de alimentação de energia do circuito de corrente contínua. Para se assegurar que toda a corrente foi DESLIGADA, localize o disjuntor no painel que serve o circuito de corrente contínua e coloque-o na posição OFF (Desligado), segurando nessa posição a manivela do interruptor do disjuntor com fita isoladora.

¡Atención! Esta advertencia únicamente se aplica si el equipo posee fuente de alimentación con entrada de corriente continua (CC). Antes de proceder con los siguientes pasos, comprobar que la alimentación del circuito de corriente continua (CC) esté cortada (OFF). Para asegurarse de que toda la alimentación esté cortada (OFF), localizar el interruptor automático en el panel que alimenta al circuito de corriente continua, cambiar el interruptor automático a la posición de Apagado (OFF), y sujetar con cinta la palanca del interruptor automático en posición de Apagado (OFF).

Varning! Denna varning berör endast enheter utrustade med strömförsörjningsenheter för inmatad likström. Innan du utför någon av följande procedurer måste du kontrollera att strömförsörjningen till likströmskretsen är bruten. Kontrollera att all strömförsörjning är BRUTEN genom att slå AV det överspänningsskydd som skyddar likströmskretsen och tejpa fast överspänningsskyddets omkopplare i FRÅN-läget.


Electric Shock Warning

fig_26.gif Warning This unit might have more than one power cord. To reduce the risk of electric shock, disconnect the two power supply cords before servicing the unit.

Waarschuwing Dit toestel kan meer dan één netsnoer hebben. Om het risico van een elektrische schok te verminderen, dient u de stekkers van de twee netsnoeren uit het stopcontact te halen voordat u het toestel een servicebeurt geeft.

Varoitus Tässä laitteessa saattaa olla useampi kuin yksi virtajohto. Irrota molemmat virtalähteestä tulevat johtimet ennen laitteen huoltamista, jotta vältät sähköiskun vaaran.

Attention Il est possible que cette unité soit munie de plusieurs cordons d'alimentation. Pour éviter les risques d'électrocution, débrancher les deux cordons d'alimentation avant de réparer l'unité.

Warnung Diese Einheit hat möglicherweise mehr als ein Netzkabel. Zur Verringerung der Stromschlaggefahr trennen Sie beide Netzgerätekabel ab, bevor Sie die Einheit warten.

Avvertenza Questa unità potrebbe essere dotata di più di un cavo di alimentazione. Per ridurre il rischio di scossa elettrica, scollegare i due cavi di alimentazione prima di procedere alla manutenzione dell'unità.

Advarsel Denne enheten kan være utstyrt med mer enn én strømledning. Koble fra de to strømledningene før det utføres reparasjonsarbeid på enheten for å redusere faren for elektriske støt.

Aviso Esta unidade poderá ter mais do que um cabo de alimentação. Para reduzir o risco de choque eléctrico, desligue os dois cabos de alimentação antes de efectuar reparações na unidade.

¡Atención! Puede ser que este equipo posea más de un cable de alimentación. Para reducir el riesgo de descarga eléctrica, desenchufar los dos cables antes de proceder al mantenimiento de la unidad.

Varning! Denna enhet kan vara försedd med mer än en nätsladd. För att minska risken för elektriska stötar skall båda nätsladdarna dras ur innan du utför underhållsarbete på enheten.


DC Power Supply Wiring Warning

fig_27.gif Warning This warning applies only to units equipped with DC input power supplies. Figure 1-4 shows the Cisco 7513 DC power supply terminal block. Wire the DC power supply using the appropriate lugs at the wiring end as shown in Figure 1-4. The proper wiring sequence is ground to ground, positive to positive (line to L), and negative to negative (neutral to N). Note that the ground wire should always be connected first and disconnected last.

Waarschuwing Deze waarschuwing geldt slechts voor toestellen die voorzien zijn van voedingen met gelijkstroom ingang. Figuur 1-4 toont de Cisco 7513 aansluitstrip van de gelijkstroom voeding. Breng de bedrading aan voor de gelijkstroom voeding met behulp van de juiste aansluitpunten aan het draadeinde, zoals te zien is in Figuur 1-4. De juiste bedradingsvolgorde is aarde naar aarde, positief naar positief (lijn naar L) en negatief naar negatief (neutraal naar N). Let op dat de aarddraad altijd het eerst verbonden en het laatst ontkoppeld wordt.

Varoitus Seuraava varoitus koskee ainoastaan tasavirran syöttövirtalähteellä varustettuja laitteita. Kuva 1-4 esittää Cisco 7513 -tasavirran pääterasiaa. Liitä tasavirtalähde johdon avulla käyttäen sopivia kiinnityskorvia johdon päässä kuvan 1-4 esittämällä tavalla. Oikea kytkentäjärjestys on maajohto maajohtoon, positiivinen positiiviseen (johto L:ään) ja negatiivinen negatiiviseen (nollajohto N:ään). Ota huomioon, että maajohto on aina yhdistettävä ensin ja irrotettava viimeisenä.

Attention Cet avertissement ne s'applique qu'aux unités équipées d'alimentations en courant continu. La figure 1-4 illustre le bloc de connexion de l'alimentation en courant continu du Cisco 7513. Câbler l'alimentation en courant continu en fixant les cosses qui conviennent aux extrémités câblées conformément à la figure 1-4. La séquence de câblage à suivre est terre-terre, positif-positif (ligne sur L), et négatif-négatif (neutre sur N). Noter que le fil de masse doit toujours être connecté en premier et déconnecté en dernier.

Warnung Diese Warnung gilt nur für Einheiten, die mit Gleichstrom-Netzgeräten ausgestattet sind. Auf Abb. 1-4 ist der Terminalblock des Gleichstrom-Netzgeräts von Cisco 7513 abgebildet. Verdrahten Sie das Gleichstrom-Netzgerät unter Verwendung von geeigneten Kabelschuhen am Verdrahtungsende (siehe Abb. 1-4). Die richtige Verdrahtungsfolge ist Erde an Erde, positiv an positiv (Leitung an L) und negativ an negativ (neutral an N). Beachten Sie bitte, daß der Erdungsdraht immer als erstes verbunden und als letztes abgetrennt werden sollte.

Avvertenza Questa avvertenza riguarda solo le unità dotate di alimentatori con ingresso CC. La Figura 1-4 mostra la morsettiera dell'alimentatore CC 7513 Cisco. Cablare l'alimentatore CC usando i connettori adatti all'estremità del cablaggio, come illustrato nella Figura 1-4. La corretta sequenza di cablaggio è da massa a massa, da positivo a positivo (da linea ad L) e da negativo a negativo (da neutro a N). Tenere presente che il filo di massa deve sempre venire collegato per primo e scollegato per ultimo.

Advarsel Denne advarselen gjelder kun for enheter som er utstyrt med strømforsyningsenheter for likestrøm. Figur 1-4 viser Cisco 7513 kabelhode for likestrømsforsyningsenheter. Koble likestrømsforsyningsenheten ved hjelp av passende kabelsko i enden av ledningen, slik som vist i figur 1-4. Riktig ledningskobling er jord til jord, positiv til positiv (linje til L), og negativ til negativ (nøytral til ~). Legg merke til at jordledningen alltid bør tilkobles først og frakobles sist.

Aviso Este aviso refere-se apenas a sistemas equipados com unidades de entrada de fornecimento de corrente contínua. A Figura 1-4, mostra o bloco do terminal Cisco 7513 de fornecimento de corrente contínua. Instale o fornecimento de corrente contínua, usando os terminais apropriados das terminações de cabo, conforme indicado na Figura 1-4. A sequência correcta de instalação é terra-a-terra, positivo-positivo (linha para L) e negativo-negativo (neutro para N). Note que o fio de terra deverá ser sempre o primeiro a ser ligado, e o último a ser desligado.

¡Atención! Esta advertencia únicamente se aplica si el equipo posee fuentes de alimentación con entrada de corriente continua (CC). La figura <x.yy> muestra la caja de bornes de la fuente de alimentación de corriente continua del equipo Cisco 7513. Cablear la fuente de alimentación de corriente continua utilizando las lengüetas de conexión apropiadas para el extremo del hilo, tal y como se demuestra en la figura <x.yy>. Las conexiones en el cableado deben realizarse en el siguiente orden: tierra con tierra, positivo con positivo (la línea con la L) y negativo con negativo (el neutro con la N). OJO: el hilo de tierra debe siempre conectarse el primero y desconectarse el último.

Varning!! Denna varning berör endast enheter utrustade med strömförsörjningsenheter för inmatad likström. Figur 1-4 visar Cisco 7513 anslutningsplint för strömförsörjningsenhet för likström. Koppla ledningarna till strömförsörjningsenheten för likström med lämpliga kabelskor i ledningsändarna såsom visas i Figur 1-4. Korrekt kopplingssekvens är jord till jord, positiv till positiv (linje till L) och negativ till negativ (neutral till N). Observera att jordledningen alltid skall anslutas först och kopplas bort sist.


DC Power Connection Warning

fig_29.gif Warning This warning applies only to units equipped with DC input power supplies. After wiring the DC power supply, remove the tape from the circuit breaker switch handle and reinstate power by moving the handle of the circuit breaker to the ON position.

Waarschuwing Deze waarschuwing geldt slechts voor toestellen die voorzien zijn van voedingen met gelijkstroom ingang. Nadat de bedrading van de gelijkstroom voeding aangebracht is, verwijdert u het plakband van de schakelaarhendel van de stroomverbreker en schakelt de stroom weer in door de hendel van de stroomverbreker naar de AAN positie te draaien.

Varoitus Seuraava varoitus koskee ainoastaan tasavirran syöttövirtalähteellä varustettuja laitteita. Yhdistettyäsi tasavirtalähteen johdon avulla poista teippi suojakytkimen varresta ja kytke virta uudestaan kääntämällä suojakytkimen varsi KYTKETTY-asentoon.

Attention Cet avertissement ne s'applique qu'aux unités équipées d'alimentations en courant continu. Une fois l'alimentation connectée, retirer le ruban adhésif servant à bloquer la poignée du disjoncteur et rétablir l'alimentation en plaçant cette poignée en position de marche (ON).

Warnung Diese Warnung gilt nur für Einheiten, die mit Gleichstrom-Netzgeräten ausgestattet sind. Nach Verdrahtung des Gleichstrom-Netzgeräts entfernen Sie das Klebeband vom Schaltergriff des Unterbrechers und schalten den Strom erneut ein, indem Sie den Griff des Unterbrechers auf EIN stellen.

Avvertenza Questa avvertenza riguarda solo le unità dotate di alimentatori con ingresso CC. Dopo aver eseguito il cablaggio dell'alimentatore CC, togliere il nastro adesivo dall'interruttore automatico e ristabilire l'alimentazione spostando all'interruttore automatico in posizione ON.

Advarsel Denne advarselen gjelder kun for enheter som er utstyrt med strømforsyningsenheter for likestrøm. Etter at likestrømsenheten er tilkoblet, fjernes teipen fra håndtaket på strømbryteren, og deretter aktiveres strømmen ved å flytte håndtaket på strømbryteren til PÅ-stilling.

Aviso Este aviso aplica-se apenas a sistemas equipados com unidades de entrada de fornecimento de corrente contínua. Depois de ligar o sistema de fornecimento de corrente contínua, retire a fita isoladora da manivela do disjuntor, e volte a ligar a corrente ao deslocar a manivela para a posição ON (Ligado).

¡Atención! Esta advertencia únicamente se aplica si el equipo posee fuente de alimentación con entrada de corriente continua (CC). Después de cablear la fuente de alimentación de corriente continua, retirar la cinta de la palanca del interruptor automático, y restablecer la alimentación cambiando la palanca a la posición de Encendido (ON).

Varning! Denna varning berör endast enheter utrustade med strömförsörjningsenheter för inmatad likström. När du har kopplat ledningarna till strömförsörjningsenheten för inmatad likström tar du bort tejpen från överspänningsskyddets omkopplare och slår på strömmen igen genom att ställa överspänningsskyddets omkopplare i TILL-läget.


DC Power Supply Warning

fig_31.gif Warning This warning applies only to units equipped with DC input power supplies. When stranded wiring is required, use approved wiring terminations, such as closed-loop or spade-type with upturned lugs. These terminations should be the appropriate size for the wires and should clamp both the insulation and conductor.

Waarschuwing Deze waarschuwing geldt slechts voor toestellen die voorzien zijn van voedingen met gelijkstroom ingang. Wanneer geslagen bedrading vereist is, dient u bedrading te gebruiken die voorzien is van goedgekeurde aansluitingspunten, zoals het gesloten-lus type of het grijperschop type waarbij de aansluitpunten omhoog wijzen. Deze aansluitpunten dienen de juiste maat voor de draden te hebben en dienen zowel de isolatie als de geleider vast te klemmen.

Varoitus Seuraava varoitus koskee ainoastaan tasavirran syöttövirtalähteellä varustettuja laitteita. Jos säikeellinen johdin on tarpeen, käytä hyväksyttyä johdinliitäntää, esimerkiksi suljettua silmukkaa tai kourumaista liitäntää, jossa on ylöspäin käännetyt kiinnityskorvat. Tällaisten liitäntöjen tulee olla kooltaan johtimiin sopivia ja niiden tulee puristaa yhteen sekä eristeen että johdinosan.

Attention Cet avertissement ne s'applique qu'aux unités équipées d'alimentations en courant continu. Quand des fils torsadés sont nécessaires, utiliser des douilles terminales homologuées telles que celles à circuit fermé ou du type àplage ouverte avec cosses rebroussées. Ces douilles terminales doivent être de la taille qui convient aux fils et doivent être refermées sur la gaine isolante et sur le conducteur.

Warnung Diese Warnung gilt nur für Einheiten, die mit Gleichstrom-Netzgeräten ausgestattet sind. Wenn Litzenverdrahtung erforderlich ist, sind zugelassene Verdrahtungsabschlüsse, z.B. für einen geschlossenen Regelkreis oder gabelförmig, mit nach oben gerichteten Kabelschuhen zu verwenden. Diese Abschlüsse sollten die angemessene Größe für die Drähte haben und sowohl die Isolierung als auch den Leiter festklemmen.

Avvertenza Questa avvertenza riguarda solo le unità dotate di alimentatori con ingresso CC. Quando occorre usare trecce, usare connettori omologati, come quelli a occhiello o a forcella con linguette rivolte verso l'alto. I connettori devono avere la misura adatta per il cablaggio e devono serrare sia l'isolante che il conduttore.

Advarsel Denne advarselen gjelder kun for enheter som er utstyrt med strømforsyningsenheter for likestrøm. Hvis det er nødvendig med flertrådede ledninger, brukes godkjente ledningsavslutninger, som for eksempel lukket sløyfe eller spadetype med oppoverbøyde kabelsko. Disse avslutningene skal ha riktig størrelse i forhold til ledningene, og skal klemme sammen både isolasjonen og lederen.

Aviso Este aviso aplica-se apenas a sistemas equipados com unidades de entrada de fornecimento de corrente contínua. Quando forem requeridas montagens de instalação eléctrica de cabo torcido, use terminações de cabo aprovadas, tais como, terminações de cabo em circuito fechado e planas com terminais de orelha voltados para cima. Estas terminações de cabo deverão ser do tamanho apropriado para os respectivos cabos, e deverão prender simultaneamente o isolamento e o fio condutor.

¡Atención! Esta advertencia únicamente se aplica si el equipo posee fuentes de alimentación con entrada de corriente continua (CC). Cuando se necesite hilo trenzado, utilizar terminales para cables homologados, tales como las de tipo "bucle cerrado" o "espada", con las lengüetas de conexión vueltas hacia arriba. Estos terminales deberán ser del tamaño apropiado para los cables que se utilicen, y tendrán que sujetar tanto el aislante como el conductor.

Varning! Denna varning berör endast enheter utrustade med strömförsörjningsenheter för inmatad likström. När flertrådiga ledningar krävs måste godkända ledningskontakter användas, t.ex. kabelsko av sluten eller öppen typ med uppåtvänd tapp. Storleken på dessa kontakter måste vara avpassad till ledningarna och måste kunna hålla både isoleringen och ledaren fastklämda.


Cisco Information Online

Cisco Information Online (CIO) is Cisco Systems' primary, real-time support channel. Maintenance customers and partners can self-register on CIO to obtain additional content and services.

Available 24 hours a day, 7 days a week, CIO provides a wealth of standard and value-added services to Cisco's customers and business partners. CIO services include product information, software updates, release notes, technical tips, the Bug Navigator, configuration notes, brochures, descriptions of service offerings, and download access to public and authorized files.

CIO serves a wide variety of users through two interfaces that are updated and enhanced simultaneously---a character-based version and a multimedia version that resides on the World Wide Web (WWW). The character-based CIO (called "CIO Classic") supports Zmodem, Kermit, Xmodem, FTP, Internet e-mail, and fax download options, and is excellent for quick access to information over lower bandwidths. The WWW version of CIO provides richly formatted documents with photographs, figures, graphics, and video, as well as hyperlinks to related information.

You can access CIO in the following ways:

  • WWW: http://www.cisco.com

  • Telnet: cio.cisco.com

  • Modem: From North America, 408 526-8070; from Europe, 33 1 64 46 40 82. Use the following terminal settings: VT100 emulation; data bits: 8; parity: none; stop bits: 1; and baud rates up to 14.4 kbps.

For a copy of CIO's Frequently Asked Questions (FAQ), contact ciohelp@cisco.com. For additional information, contact cioteam@cisco.com.


Obtaining Additional Information

To order UniverCD, Cisco's online library of product information on CD-ROM, or printed publications, refer to "Ordering Cisco Documentation," which is in your chassis warranty pack.

If you are a network administrator and need personal technical assistance with a Cisco product that is under warranty or covered by a maintenance contract, contact Cisco's Technical Assistance Center (TAC) at 800 553-2447, 408 526-7209, or tac@cisco.com. To obtain general information about Cisco Systems, Cisco products, documentation, UniverCD, or upgrades, contact 800 553-6387, 408 526-7208, or csrep@cisco.com.

fig_7.gif

HomeTOCPrevNextGlossSearchHelp
-

Copyright 1988-1996 © Cisco Systems Inc.