Banner
HomeTOCPrevNextGlossSearchHelp

PDF

Table of Contents

STRATM Cabinet Dimensions

STRATM Cabinet Dimensions

STRATM Cabinet Dimensions

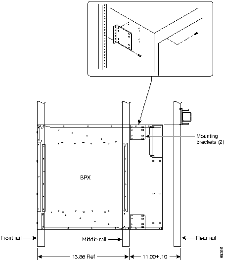
This appendix illustrates the space requirements for various system configurations in the STRATM cabinet and a typical cable management setup. It also contains a table with the height of StrataCom components in inches, centimeters, and rack-mount units (RMUs). This can help in the calculation of height requirements for individual system configurations. The last illustration shows the bracket installation in the STRATM (for a BPX, in this case). The sequence of sections is as follows:

Figure E-1 : Back View of STRATM Cabinet

h8215.gif

Figure E-2 : Cable Management

h8363.gif

Figure E-3 : IGX 32, AC and DC-Powered

h8220.gif

Figure E-4 : IGX 16, DC-Powered and AC-Powered

h8364.gif

Figure E-5 : IGX 8, AC or DC-Powered

h8365.gif

Figure E-6 : Single BPX, AC and DC-Powered

h8217.gif

Figure E-7 : Single BPX and Single AXIS, AC and DC-Powered

h8218.gif

Figure E-8 : BPX, AXIS, and INS, AC and DC-Powered

h8219.gif

Figure E-9 : BPX With 2 INS and 3 AXIS, DC-Powered

h8221.gif

Figure E-10 : Six AXIS Shelves, DC-Powered

h8222.gif

Figure E-11 : BPX With Three AXIS Shelves, DC-Powered

h8223.gif

Table E-1 : Table of STRATM Cabinet and Component Heights


Components
Unit Height
Inches CM. RMUs
AXIS Card Cage 8.75 22.225 5
AXIS AC Power Supply shelf 5.25 13.335 3
AXIS Booster Fan Assembly 3.5 8.89 2
AXIS Cooling Assembly 5.25 13.335 3
AXIS Exhaust Plenum 3.5 8.89 2
BPX AC Power Supply shelf 5.25 13.335 3
BPX Card Cage 22.75 57.785 13
IGX AC Power Supply shelf 5.25 13.335 3
IGX Booster Fan Assembly 3.5 8.89 2
IGX Card Cage 17.5 44.45 10
IGX Cooling Assembly 5.25 13.335 3
IGX Exhaust Plenum 3.5 8.89 2
IGX-8 24.5 62.23 14
INS 5.5 13.97 4

Cabinet
Unit Height
Inches CM. RMUs
Stratm Cabinet 71.75 1822.45 41

Figure E-12 : Mounting Brackets (AC-Powered BPX)

h8224.gif

Figure E-13 : Mounting Brackets (DC-Powered BPX)

h8396.gif

HomeTOCPrevNextGlossSearchHelp
-

Copyright 1988-1996 © Cisco Systems Inc.